Imobiliare Constanta Daniel Cirlig utilizează fişiere de tip cookie pentru a personaliza și îmbunătăți experiența ta pe Website-ul nostru. Înainte de a continua navigarea pe Website-ul nostru te rugăm să aloci timpul necesar pentru a citi și înțelege conținutul Politicii de Cookie. Prin continuarea navigării pe Website-ul nostru confirmi acceptarea utilizării fişierelor de tip cookie conform Politicii de Cookie.

Bd.Mamaia cladire 150 mp pe colt cu destinatie de spatiu comercial

Constanta

219.000€
ID: FX66288 1 Comision 0% Exclusivitate
  • Nr. camere:4
  • S. utila:150.00 mp
  • S. construita:100.00 mp
  • S. curte:100.00 mp
  • S. vitrina:10.00 m
  • Front stradal:20.00 m
  • Comp.:Open space
  • Nr. bai:2
  • An renovare:2025
  • Structura rezistenta:Caramida
  • Tip imobil:Bloc
  • Regim inaltime:S+P

Clădire de vânzare în Constanța, Bd. Mamaia – spațiu comercial ideal pentru afaceri

📍 Locație premium – Clădire situată pe Bulevardul Mamaia, una dintre cele mai circulate artere din Constanța, cu vad comercial excelent și vizibilitate ridicată.

Dacă îți dorești să îți dezvolți afacerea într-un spațiu cu trafic intens și expunere directă, această clădire cu destinație comercială este alegerea potrivită.

🔹 Detalii imobil:

Clădire veche din cărămidă, solidă, în curs de renovare;

Acoperiș complet schimbat;

Instalații termice, electrice și sanitare noi;

Interior predat la alb, cu pereții finisați și pregătiți pentru vopsea lavabilă albă.

🔹 Suprafețe:

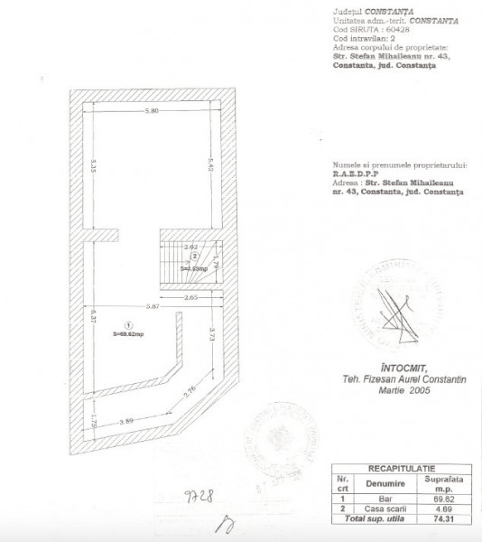
Teren: 100 mp

Suprafață construită desfășurată: 200 mp

Suprafață utilă: 151,5 mp

Această clădire comercială de vânzare în Constanța este ideală pentru: magazine, birouri, clinici medicale, cabinete sau alte activități comerciale care au nevoie de vad stradal și vizibilitate maximă.

👉 Profită de ocazia de a achiziționa o clădire cu spațiu comercial pe Bd. Mamaia, una dintre cele mai bune zone pentru investiții în Constanța.

Utilitati
  • Utilitati generale: Curent, Apa, Canalizare, Gaz, Curent trifazic, CATV
Dotari
  • Contorizare: Apometre
Daniel Cirlig utilizează fişiere de tip cookie pentru a personaliza și îmbunătăți experiența ta pe Website-ul nostru. Înainte de a continua navigarea pe Website-ul nostru te rugăm să aloci timpul necesar pentru a citi și înțelege conținutul Politicii de Cookie. Prin continuarea navigării pe Website-ul nostru confirmi acceptarea utilizării fişierelor de tip cookie conform Politicii de Cookie.

DANIEL CÎRLIG

Broker

Contacteaza-ma

Bine ai venit pe site-ul meu!

DESCARCĂ GRATUIT!(Pentru a descărca documentul te rog să-mi transmiți numele si adresa ta de email pentru a te putea ține la curent cu ultimele noutăți din piata imobiliară)

8 Lucruri pe care trebuie să le cauți la un agent imobiliar